
产品型号:Z41T
公称通径:DN50-600 mm
公称压力:PN1.0MPa
适用温度:≤200℃
适用介质:水、蒸汽、油品
阀体材质:灰铸铁等
连接形式:法兰
设计规范:GB/T 12234
结构长度:GB/T 12221
连接法兰:JB/T 79
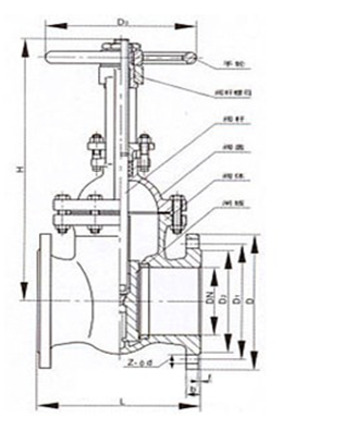
Z41T明杆楔式闸阀是一种自动阀,它是依靠介质的压力将闸板密封面压向另 一个方向的阀座密封面,使得两个密封面紧密重合从而保障密封效果。明杆楔式闸阀 的闸板可做成一个整体,通常称为刚性闸板;或是改善它的工艺性,从而弥补在加工过 程中出现的偏差,这种闸板称为弹性闸板。
| 型号 | PN | 工作压力/MPa | 适用温度/℃ | 适用介质 |
| Z41T-10 | 10 | 1.0 | ≤200 | 水、蒸汽 |
| Z41W-10 | 10 | 1.0 | ≤100 | 油品 |
| 型号 | 材料 | |||
| 阀体、阀盖、闸板 | 阀杆 | 密封面 | 填料 | |
| Z41T-10 | 灰铸铁 | 碳钢 | 黄铜 | 油浸石棉填料 |
| Z41W-10 | 灰铸铁 | 碳钢 | 灰铸铁 | 油浸石棉填料 |
| DN | L | D | D1 | D2 | b | H | H1 | z×Φd | D0 | 重量/kg |
| 50 | 180 | 160 | 125 | 100 | 20 | 286 | 345 | 4×Φ18 | 180 | 17 |
| 65 | 195 | 180 | 145 | 120 | 20 | 331 | 410 | 4×Φ18 | 180 | 22 |
| 80 | 210 | 195 | 160 | 135 | 22 | 375 | 470 | 4×Φ18 | 200 | 30 |
| 100 | 230 | 215 | 180 | 155 | 22 | 430 | 544 | 8×Φ18 | 200 | 35 |
| 125 | 255 | 245 | 210 | 185 | 24 | 523 | 660 | 8×Φ18 | 240 | 52 |
| 150 | 280 | 280 | 240 | 210 | 24 | 592 | 762 | 8×Φ23 | 240 | 70 |
| 200 | 330 | 335 | 295 | 265 | 26 | 772 | 993 | 8×Φ23 | 320 | 125 |
| 250 | 380 | 390 | 350 | 320 | 28 | 903 | 1176 | 12×Φ23 | 320 | 170 |
| 300 | 420 | 440 | 400 | 368 | 28 | 1043 | 1366 | 12×Φ23 | 400 | 226 |
| 350 | 450 | 500 | 460 | 428 | 30 | 1173 | 1540 | 16×Φ23 | 400 | 360 |
| 400 | 480 | 565 | 515 | 482 | 32 | 1245 | 1765 | 16×Φ25 | 500 | 444 |
| 450 | 510 | 615 | 565 | 532 | 32 | 1500 | 1970 | 20×Φ25 | 500 | 590 |
| 500 | 540 | 670 | 620 | 585 | 34 | 1780 | 2280 | 20×Φ25 | 720 | 740 |
| 600 | 600 | 780 | 725 | 685 | 36 | 2010 | 2620 | 20×Φ30 | 720 | 960 |